Bungalov 112
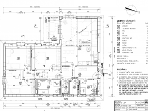
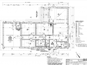
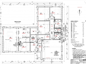
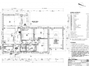
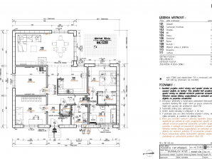
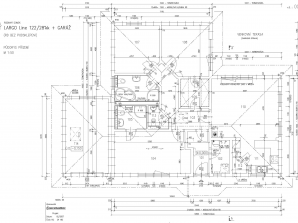
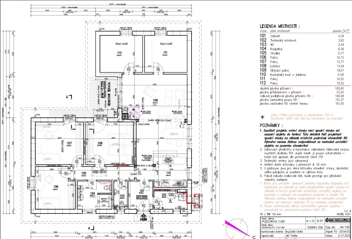
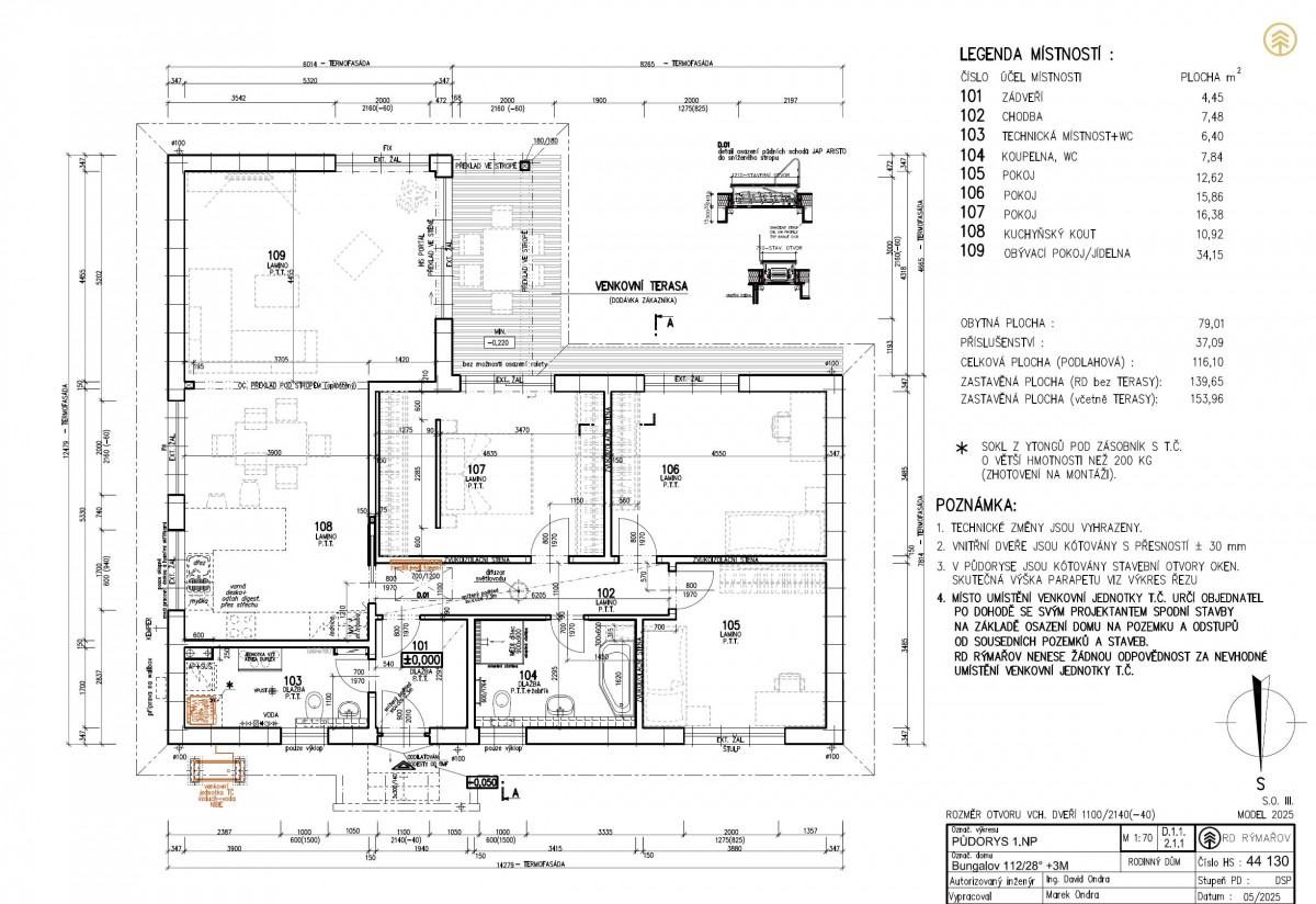
Jednopodlažní dům Bungalov 112 ve tvaru písmena L poskytuje příjemné a velmi praktické bydlení celé rodině.Bezbariérový bungalov přímo vybízí k vybudování klidné terasy přístupné z obývacího pokoje. V rodinném domě Bungalov 112 o podlahové ploše 104,84 m2 s řízeným větráním bude Vaše bydlení vysoce komfortní, a přitom úsporné.
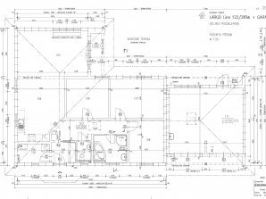
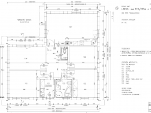
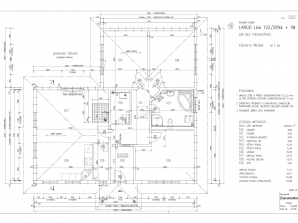
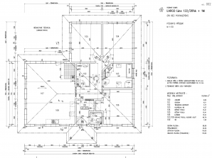
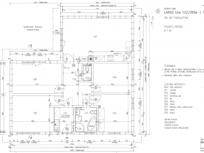
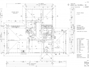
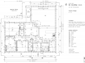
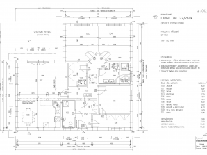
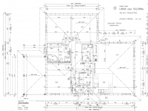
Půdorys rodinného domu Bungalov 112 má tvar písmene L. Tím se stává velmi praktickým pro vybudování terasy, orientované do klidnější části zahrady. Další výhodou tohoto tvaru je možnost rozšiřování na obě strany a plné využití oslunění, které je dobrým předpokladem k nízké energetické náročnosti celého domu Bungalov 112.
Dodávka vybavení na klíč obsahuje:
- valbová střecha se sklonem 28°
- v ceně domu doprava
- obvodové stěny s vnitřní izolací 120 + 40 mm a vnější termofasádou 150 mm uzavřenou strukturní barevnou omítkou
- betonová střešní krytina včetně anténní tašky
- vnější dřevěné díly natřené lazurovou barvou dle vzorníku
- okapy z titanozinku
- venkovní nezámrzný zahradní ventil
- zateplený poklop se schůdky na pochozí půdu
- laminátová podlaha nebo koberec v obytných místnostech, v ostatních místnostech dlažba
- obklady v koupelně a na WC do výše dveří
- elektroinstalace od skříně domovního rozvaděče včetně dodávky domovního rozvaděče, v místnostech jsou zabudovány zásuvky a vypínače bílé barvy
- ventilátor s hygrostatem v místnostech s vanou nebo sprchou
- instalace slaboproudu - zvonek od domovních dveří, zásuvka pro kabelové připojení TV včetně kabelového rozvodu v domě
- sanitární vybavení - umyvadlo ze sanitární keramiky v bílé barvě se směšovací pákovou baterií, umývátko ze sanitární keramiky v bílé barvě se směšovací pákovou baterií, vana s pákovou baterií a se sprchovou hadicí a růžicí, sprchový kout včetně baterie se sprchovou hadicí a růžicí a kombinované WC
- přípojka pro pračku
- přípojka pro myčku
- ohřev teplé vody pomoci zásobníku 200 l
- tepelné čerpadlo vzduch/vzduch s možností vytápění nebo chlazení interiérovými splitovými klimatizačními jednotkami
- elektrické nástěnné přímotopné panely bez centrální regulace
- třífázový fotovoltaický systém o výkonu cca 2,7 kWp s hybridním střídačem
- malířské práce - stěny a stropy upraveny zednickou stěrkou stupně kvality povrchu Q2, bílá malba
- kuchyňské přípojky vody, odpady a elektro v rozsahu dle typové obchodní dokumentace
- rozvody vody potrubí Alpex, kanalizace z plastových trubek
- požární bezpečnost - zařízení autonomní detekce a signalizace
- okna a terasové dveře vyrobené ze 7-mi komorových PVC profilů v bílé barvě s izolačním trojsklem, součinitel prostupu tepla celého okna Uw ≤ 1,0 W/(m².K)
- vnitřní dýhované dveře v provedení plné s obložkovou zárubní a protihlukovým průběžným gumovým těsněním
- dveřní kování dvoudílné rozetové
- vchodové domovní dveře v provedení masiv nebo z 5-ti komorových PVC profilů v bílé barvě se třemi závěsy a pětinásobným uzávěrem
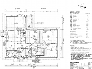
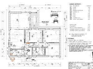
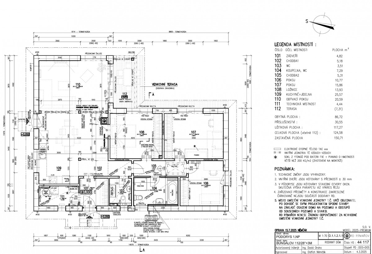
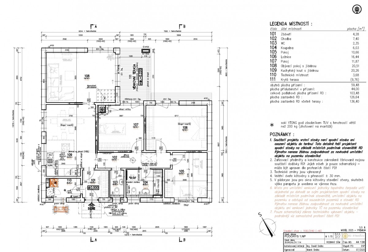
Bezbariérový rodinný dům Bungalov 112 Vás potěší nejen svou podlahovou plochou 104,84 m2, ale také svým praktickým uspořádáním místností. Dostatečně prostorný obývací pokoj, spojený s kuchyňským a jídelním koutem, poskytuje přímý přístup na terasu a zároveň je oddělen od klidové zóny domu – pokojů a ložnice. Nechybí ani poměrně velká koupelna, která umožňuje umístění vany i sprchového koutu.
| Celkem | |
|---|---|
| Obytná plocha 72,46 m2 | |
| Příslušenství 32,38 m2 | |
| Zastavěná plocha včetně terasy 138,85 m2 | |
| Podlahová plocha přízemí 104,84 m2 | |
| Rozměry domu 13,07 x 7,814 m | |
| Sklon střechy 28° | |



























































